Françoise Gervot Architecte

Surélévation et restructuration d'une maison

Nantes

01 surelevation et restructuration nantes

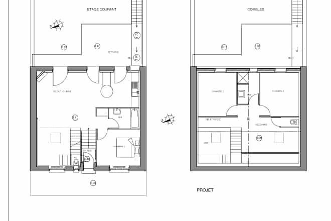
La maison avait conservé sa distribution d'origine, à savoir très cloisonnée et peu ouverte sur le jardin. Les combles n'offraient aucune surface exploitable.

La surélévation a consisté en redressement du versant de toiture côté jardin offrant ainsi la possibilité de créer deux chambres et une salle de bain.

A l'étage inférieur, l'espace a été décloisonné et les fenêtres sur jardin ont toutes été transformées en porte fenêtre pour capter la lumière du sud et donner accès à une terrasse.



01 surelevation et restructuration nantes
02 surelevation et restructuration nantes
03 surelevation et restructuration nantes
04 surelevation et restructuration nantes
05 surelevation et restructuration nantes
06 surelevation et restructuration nantes
07 surelevation et restructuration nantes
08 surelevation et restructuration nantes
09 surelevation et restructuration nantes
10 surelevation et restructuration nantes
Avant travaux
11 surelevation et restructuration nantes
12 surelevation et restructuration nantes
Plans
13 surelevation et restructuration nantes
14 surelevation et restructuration nantes
15 surelevation et restructuration nantes
scroll top