Françoise Gervot Architecte

Rénovation à 100% d'une maison

Bouvron

01 renovation maison bouvron 44

Cette vieille bâtisse plus que centenaire témoignait encore du soin apporté à l'architecture rurale de cette région. Son confort intérieur était cependant devenu obsolète.

C'est une rénovation/ réhabilitation complète qui s'est imposée offrant ainsi l'opportunité d'ouvrir les espaces, de les rendre fluides et d'inviter la lumière naturelle à y pénétrer.

Une seule baie a été créée en pignon et l'ajout d'un vélux en surplomb des escaliers a suffi à atteindre cet objectif.

La cheminée et l'escalier s'harmonisent et créent l'événement au cœur d'un espace de vie modulable.


01 renovation maison bouvron 44
02 renovation maison bouvron 44
03 renovation maison bouvron 44
04 renovation maison bouvron 44
05 renovation maison bouvron 44
06 renovation maison bouvron 44
07 renovation maison bouvron 44
08 renovation maison bouvron 44
09 renovation maison bouvron 44
10 renovation maison bouvron 44
Travaux
11 renovation maison bouvron 44
12 renovation maison bouvron 44
13 renovation maison bouvron 44
14 renovation maison bouvron 44
15 renovation maison bouvron 44
16 renovation maison bouvron 44
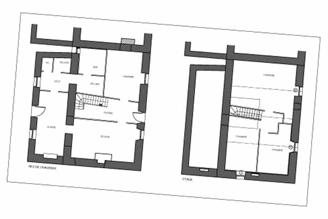
Plans avant travaux
17 renovation maison bouvron 44
Plans après travaux
18 renovation maison bouvron 44
scroll top